意昂体育4 -〈意昂4登录即享,美好时光〉

意昂4自动化

意昂4专注过程自动化解决方案MEACON

意昂4服务热线
意昂4产品系列,100多种型号
您的位置: 首页 > 超声波流量计 >
  • 6000轴承

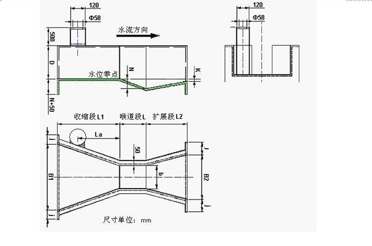
明渠流量计/巴氏流量计 河道 渠道流量计

品牌:意昂4
应用:广泛应用于诸多领域,从工业到日常生活中
防护等级:IP65
产品认证:国家双软认证
咨询热线

 产品·参数
   Product parameter
超声波流量计

明渠流量计以流速-水位运算法为基础,并采用了先进的流速测量仪和水位测量仪,从而确保测速和运算的准确性的一种新型智能化流量系统,根据渠道的宽度和测量精度的要求,采用单探头法或多探头法明渠测流的数学模型。明渠流量计是非接触测量,能在较恶劣的环境中应用。明渠流量计应用场所有城市供水引水渠、火电厂冷却引水河排水渠、污水治理流入和排放渠、工况企业废水排放以及水利工程和农业灌溉用渠道等。(意昂体育4 -〈意昂4登录即享,美好时光〉不提供配套的巴歇尔槽)
 



  测量范围大,流量测量不受支流面回水的影响。
  测量时不受水中漂浮物泥沙、气泡和水位大幅度变化的影响流量传感器对水流产生阻力结构简单、体积小、安装方便。
  标准渠道不需要改造可直接安装,安装施工费用低。
  仪表显示输出功能齐全,可显示水位、流速、流量、累计流量等测量数据,并具有RS-485通讯接口。
  具有水位、泥位、流速超限报警功能。
  具有数据保存功能,可在长期停电的情况下保存设置参数和流量值














 

热品推荐 / Hot product

流量计

流量计系列:广泛应用于石油化工、钢铁冶金、给水排水、水利灌溉、水处理、污水处理站(环保污水控制、化工污水、电镀污水)、造纸(纸浆)、泥浆、医药、食品等工农业的生产公司过程流量测量和控制。
液位计

液位计

液位计系列:液位计利用发射超声波经物位或液位,反射后所需要的时间来计算距离。
PH计

PH计

PH计系列:广泛应用于火电、化工化肥、冶金、环保、制药、生化、食品和自来水等溶液中PH值或ORP值和温度的连续监测。
压力变送器

压力变送器

压力系列:广泛应用于过程控制、航空、航天、汽车、医疗设备、HVAC等行业的液体、气体的测量与控制。

全国服务热线